
3
FIGURE 3 - SR-4
™
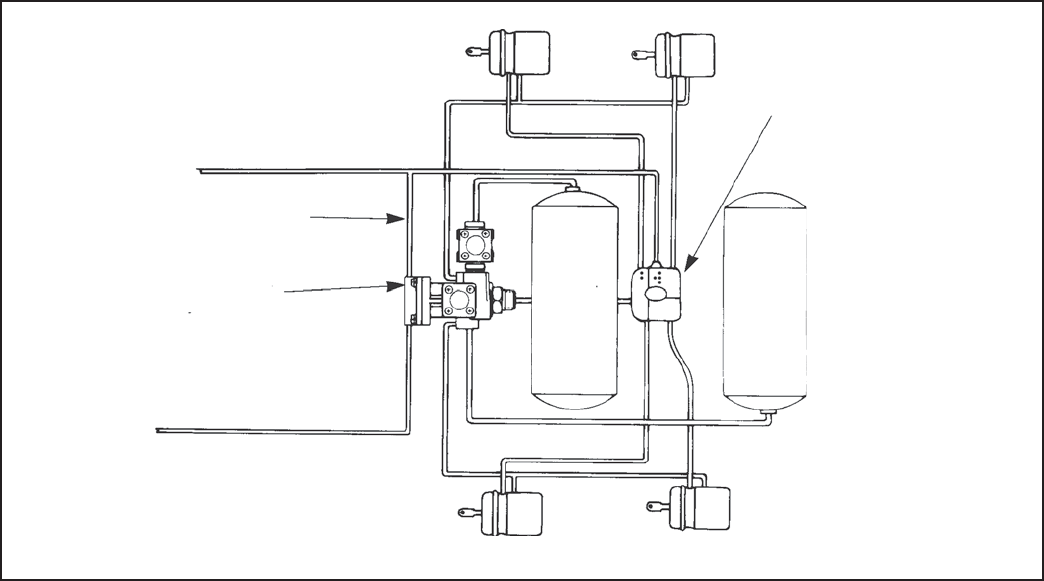
VALVE ANTI-COMPOUNDING PLUMBING
TRAILER SUPPLY LINE
RES. #2
R-12
™
RELAY
VALVE
TRAILER SERVICE LINE
ANTI-COMPOUNDING
CONNECTION
SINGLE CHECK
VALVE
RES. #1
PREVENTIVE MAINTENANCE
Important: Review the Bendix Warranty Policy before
performing any intrusive maintenance procedures. A
warranty may be voided if intrusive maintenance is
performed during the warranty period.
No two vehicles operate under identical conditions, as
a result, maintenance intervals may vary. Experience is
a valuable guide in determining the best maintenance
interval for air brake system components. At a minimum,
the SR-4
™
valve should be inspected every 6 months or
1500 operating hours, whichever comes fi rst, for proper
operation. Should the SR-4
™
valve not meet the elements
of the operational tests noted in this document, further
investigation and service of the valve may be required.
SERVICE AND LEAKAGE TESTS
Check the tractor dash gauge against a test gauge known
to be accurate prior to performing these tests. Connect
the tractor air lines to the trailer on which the SR-4
™
trailer
spring brake valve is to be tested. Block all wheels or hold
both vehicles by a means other than air brakes.
1. Install two separate test gauges or one dual test gauge
with one line to the #1 reservoir and the other line to the
#2 reservoir. Build the tractor and trailer to full system
pressure by placing the trailer supply valve in the charge
position and the parking control valve in the "brakes
released" position.
Note: As system pressure reaches approximately 60
p.s.i., the #2 reservoir and the spring brakes
should build up to approximately 60 p.s.i. before
the #1 reservoir begins to charge (see Fig. 3).
When full system pressure has been reached and
the spring brakes fully released, it is acceptable
to have a slightly lower pressure reading in the
service reservoirs than is registered on the dash
gauge. Apply a soap solution to the exhaust port
and the vent. Leakage of a 1" bubble in 5 seconds
is permissible.
2. Place the trailer supply valve in the exhaust position;
the spring brakes should apply. Disconnect the trailer
supply line and soap the hose coupling to check
for leaks. A 1" bubble in not less than 5 seconds is
permissible.
3. Reconnect the trailer supply hose coupling and recharge
the trailer system. The spring brakes should release.
Shut off the engine, leaving the ignition on and open the
drain cock on the #1 reservoir. The tractor air system
should bleed down to approximately 55 p.s.i. with low
pressure, indication occurring at or before 60 p.s.i. The
#2 reservoir on the trailer should also bleed down to
approximately 55 p.s.i. but the spring brakes on tractor
and trailer should remain released. After the system is
stabilized, leakage at the open drain cock in the trailer
should not exceed a 1" bubble in 5 seconds.
Commenti su questo manuale